Access Every Home Instantly!
Free Access in Seconds
Name
E-Mail
City
Phone Number
(will be used as your password)
Continue to Homes ››
Already a Member? Login ››
Member Login
Login E-Mail
City
Login Phone Number
(your phone number is your password)
Login Now ››
Create an Account ››
Home
Search Homes
Search All Homes
Search Neighborhoods
Search Schools
Search Townhomes
Search Condos
Quick Links
Basement Homes
Homes With Pools
Master On The Main
Foreclosures
Pre Foreclosures
Short Sale
Lake Front
Detached Garage
On Golf Course
Private Pool
New Construction
Finished Basement
Neighborhood Tennis
Neghborhood Pool
Neighborhood Golf
Hot Tub
Gated Community
Three Car Plus Garage
Dock
Sell Your Home
Contact Us
Sign In
Favorite Homes
Recent Homes
Sign Out
Menu
HOME
SEARCH
SELL
CONTACT
GO BACK
SEARCH ALL HOMES
SEARCH NEIGHBORHOODS
SEARCH SCHOOLS
SEARCH CONDOS
SEARCH TOWNHOMES
BASEMENT HOMES
HOMES WITH POOLS
MASTER ON THE MAIN
FORECLOSURES
PRE FORECLOSURES
SHORT SALE
LAKE FRONT
DETACHED GARAGE
ON GOLF COURSE
PRIVATE POOL
NEW CONSTRUCTION
FINISHED BASEMENT
NEIGHBORHOOD TENNIS
NEGHBORHOOD POOL
NEIGHBORHOOD GOLF
HOT TUB
GATED COMMUNITY
THREE CAR PLUS GARAGE
DOCK
Back
Save
Search
Paulding County
Dallas
Creek Wood Unit 2
Creekwood Pass
443 Creekwood Pass
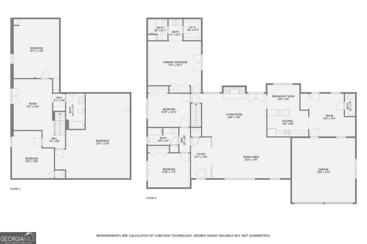
Pictures of 443 Creekwood Pass
30157
443 Creekwood Pass
Dallas, GA 30157
Sana Neyazi
call for more info
678-427-6806
Ask a Question
Send to a Friend
Schedule a Showing
Request More Info
Smart Mortgage Options
Dalton Carter
Lender
Lic.
1566538
Office:
Direct:
678-425-4140
AP Mortgage
340 Jesse Jewell Parkway
Suite 500A
Gainesville, GA 30501
Apply for a Loan
mainstay brokerage